登録番号:197
物件写真
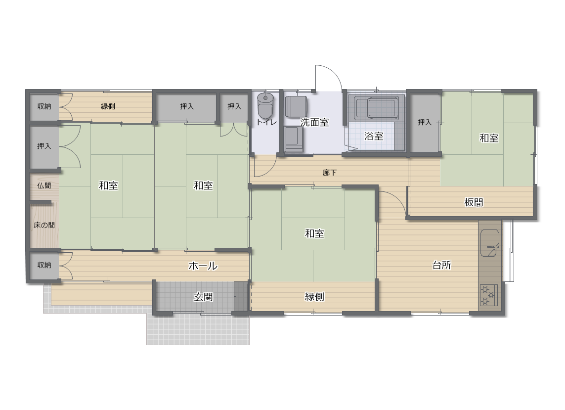
間取り図

| 管理番号 | 197 | 空き物件 | |
| 売却・賃貸 | 売却 | 価格 | 650万円程度 |
| 物件所在地 | 志布志市志布志町安楽2773-7 | ||
| 最寄りの主要施設 | 志布志市役所(志布志庁舎):車で約6分 JR志布志駅:車で約7分 | ||
| 物件建築時期 | 平成7年 | ||
| 土地面積 | 493.16 ㎡ | ||
| 建物面積 | 94.76 ㎡ | ||
| 家屋の状況 | 補修中 | ||
| 各種設備 | 電気引込済み プロパンガス 上水道完備 浄化槽 電話接続済み CATV接続済み 風呂(ガス) トイレ(様式) 駐車場2台分 | ||











| 管理番号 | 197 | 空き物件 | |
| 売却・賃貸 | 売却 | 価格 | 650万円程度 |
| 物件所在地 | 志布志市志布志町安楽2773-7 | ||
| 最寄りの主要施設 | 志布志市役所(志布志庁舎):車で約6分 JR志布志駅:車で約7分 | ||
| 物件建築時期 | 平成7年 | ||
| 土地面積 | 493.16 ㎡ | ||
| 建物面積 | 94.76 ㎡ | ||
| 家屋の状況 | 補修中 | ||
| 各種設備 | 電気引込済み プロパンガス 上水道完備 浄化槽 電話接続済み CATV接続済み 風呂(ガス) トイレ(様式) 駐車場2台分 | ||